X

What Process Does JP Architects, Ltd. Use?

When obtaining a new client there a process that we follow at JP Architects, Ltd. This allows us to have consistency with each project and help the client understand the length of time that a project is expected to take. However, before we even enter this process there is one step that I would like to quickly highlight.

Our Process

Many people, friends and other business owners often ask me "Jose, how do you go about acquiring new projects and work?"

 

In architecture, especially with the type of residential and small business work that JP Architects, Ltd. is currently producing, each new opportunity starts with a referral. That is why it is essential for me as a new business owner to consistently perform at the highest level for my clients.

 

Every new opportunity for us starts with a phone call. At our first point of contact, we simply talk with the customer about their wants and needs.

 

This is followed by a visit to the area where the building will occur. Before any figures are discussed, I want to make sure that the customer has the opportunity to share their ideas and concerns. This is a core principal of the way we conduct business at JP Architects, Ltd. From this information, I am able to direct the customer on what is possible, while also catering to their requests!

 

Congrats! At this point, you have officially completed step 1 of the process, Programming!

 

After speaking with the customer and visiting the property or site, I head back to the office and begin Step 2: Schematic Design. I take what we talked about and turn that into a 2D design so that the customer can visualize the space and also make changes if necessary! An example of this can be found below:

 

Schematic Design Example

(Schematic Design of Second Floor Addition)


 

Now, I understand that sometimes it is hard for the customer to visualize exactly what the outcome will be by just looking at a 2D Rendering with boxes and sizes of rooms. That is why I have invested in a new technology called Building Information Modeling (BIM). BIM is used to show clients what's possible in 3D. It takes the 2D schematic design a step further and moves JP Architects, Ltd. into the Design Development phase of our process! At this point, we help guide our clients in choosing materials that are consistent with their wants and preferences. We ask what is the outside of the building going to be built of & what is the inside going to look like? An example of this can be seen in the two pictures below:

 

 

Design Development Example

Design Development Example

 

(This is image is the 3D Rendering of the 2D Design above!)

 

 

 


 

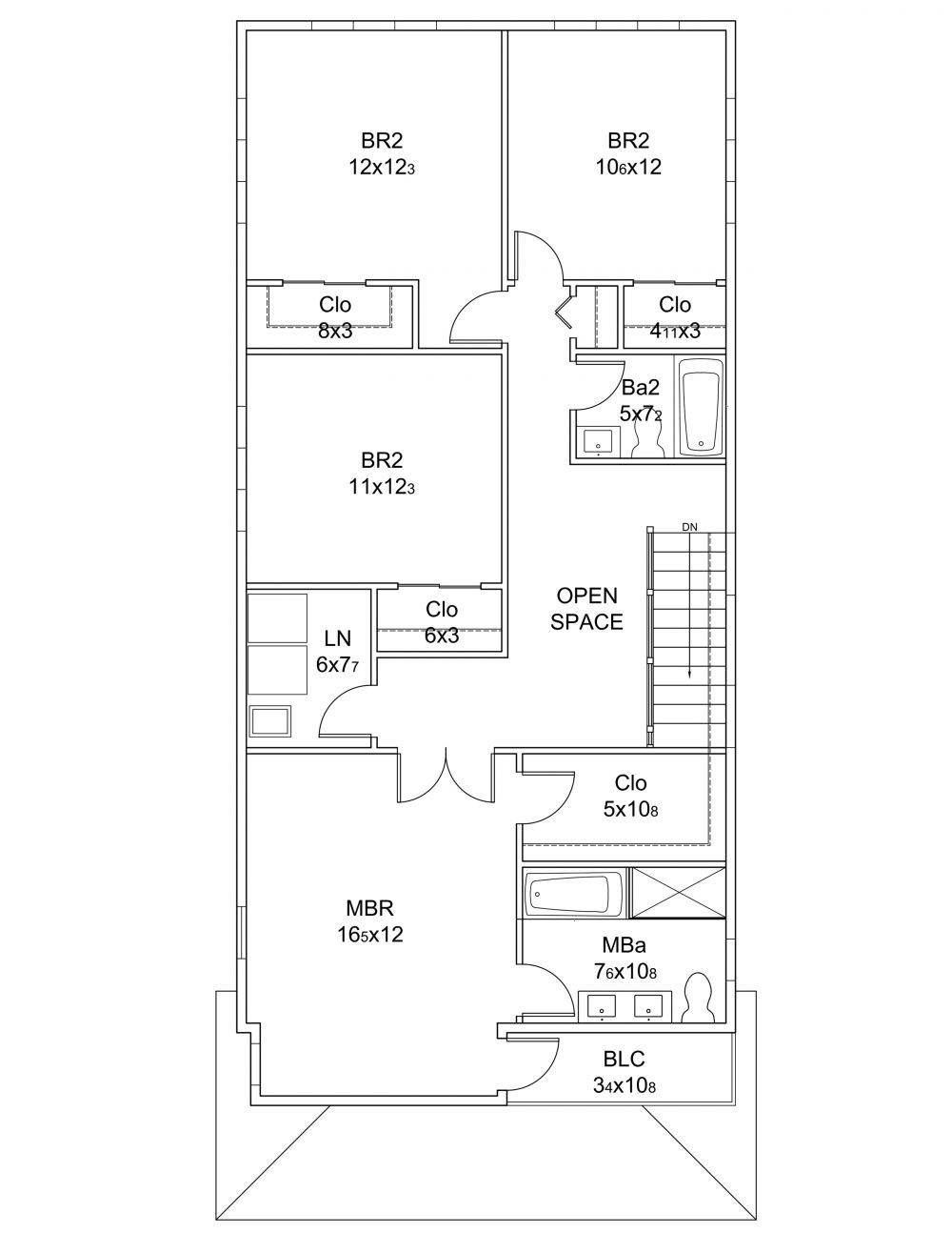
Following Design Development, we enter into Step 4: Construction Documents. This is the technical phase of our process. The owner of the property can go out and obtain bids based on the drawings from various contractors and builders. They get to decide whom to work with, as we are capable of working with any business. We are happy to make suggestions and recommendations, but know that you do have the power to choose in this phase! Ultimately, the drawings are submitted to the local municipality for the building permit, which allows construction to begin - heading towards the end result.

 

Construction Document Example

 

Many architecture firms, whether they're residential or commercial, have a similar process. However, what makes JP Architects, Ltd. different and unique is the last step in our process Construction Administration. We stand by our clients throughout the entire process, from beginning to end. We are your advocates during the construction phase to ensure our combined vision is accomplished. This is a crucial step in the process because it is important for the owner to know that JP Architects, Ltd. is there from the beginning kick-off meeting through completion. We are there to make sure that your wishes are being carried out properly, safely and consistent to the design that was put forward.

 

Now that you have a little bit of insight into the process we use when working through a project, you can feel confident that JP Architects, Ltd. is the premier residential, commercial and educational architecture firm for Chicago and its south and north suburbs! We can't wait to hear from you about your next project!

 

 

Until next time,

Jose R. Pareja, AIA

 

 

 
 

 

Back